"Tehničke karakteristike Decco 83 PVC sistema"
• propustljivost vazduha zadovoljava klasu D po JUS D.E8.013
• izolaciona vrednost čitavog prozora: Max. Uw=0.59W/m2K
• zvućna izolacija: Max. R=45dB, što je više od R=33dB u klasi II po JUS U.J6.201
• otpornost prema delovanju vode je veća od zahtevane u klasi D po JUS.D.E8.011
Zastakljivanje
- podržano staklo u termopanu debljine do 52mm
Zaptivanje
- tri zaptivne gume za zaštitu od vetra,kiše i zvuka
Ojačanje
- podcinkovano čelično ojačanje u krilu i ramu za stabilnost i dugi vek trajanja
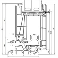
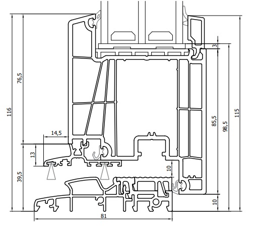
Ugradna dubina
- 81mm
Broj Komora
- 7 komora
Izolaciona vrednost
- izolaciona vrednost: Uf = 1,0W/m2K do Uf = 0,59W/m2K
Ram visina
- 72mm
Protivprovalna zaštita
- do RC3
Aluskin
- 91mm sa Aluskin
• izolaciona vrednost čitavog prozora: Max. Uw=0.59W/m2K
• zvućna izolacija: Max. R=45dB, što je više od R=33dB u klasi II po JUS U.J6.201
• otpornost prema delovanju vode je veća od zahtevane u klasi D po JUS.D.E8.011
Zastakljivanje
- podržano staklo u termopanu debljine do 52mm
Zaptivanje
- tri zaptivne gume za zaštitu od vetra,kiše i zvuka
Ojačanje
- podcinkovano čelično ojačanje u krilu i ramu za stabilnost i dugi vek trajanja
Ugradna dubina
- 81mm
Broj Komora
- 7 komora
Izolaciona vrednost
- izolaciona vrednost: Uf = 1,0W/m2K do Uf = 0,59W/m2K
Ram visina
- 72mm
Protivprovalna zaštita
- do RC3
Aluskin
- 91mm sa Aluskin




